CAMBES
Demande des clients :
Les clients ayant récemment emménagé dans cette maison, ils désiraient un grand jardin familial moderne.
Leur demande était de supprimer l'ancien potager inexploité et qui occupait le 1/4 de la parcelle et conserver les arbres fruitiers matures existants.
Le projet bien que global, devait pouvoir se découper en séquences, que les clients pourraient exécuter au fur et à mesure de leurs possibilités.
La demande comportait : un espace jacuzzi, des jeux pour enfants, un petit potager ludique, une cuisine d'été ou espace barbecue et des massifs avec peu d'entretien. Et si possible un terrain de pétanque...
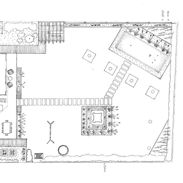
Restructuration d'un grand jardin familial
Points clés du projet:
> La conservation des arbres fruitiers implantés en diagonale sur la parcelle était une forte contrainte. Le projet s'est clairement appuyé sur cette contrainte pour en faire un élément fort, graphique et central. Cette diagonale est même soulignée par une tonte différenciée en pied d'arbre : le gazon est volontairement maintenu haut sur un carré de 2mx2m pour exagérer l'aspect graphique du jardin.
> La répartition des différents espaces s'est faite en fonction de 2 critères : les espaces "enfants" à proximité immédiate de la terrasse (jeux et potager) et les espaces "adultes" dans les zones ensoleillées de fin de journée (pétanque, jacuzzi).
> La cuisine d'été a été positionnée en fonction de la proximité de la terrasse et des accès techniques (prises de courant et arrivées d'eau)
> Des circulations en platelage bois (bordant la terrasse en pierre pour apporter du contraste) et en pas japonais (au centre du jardin) permettent d'accéder à toutes les zones du jardin même lorsque le terrain est gorgé d'eau (climat océanique de Normandie!)
Détails techniques:
La création d'un espace jacuzzi au centre du jardin demande une extension des réseaux eau et électricité.
Pour permettre la mise en valeur des éléments forts du jardin (terrain de pétanque, diagonale d'arbres, et espace jacuzzi), un système éclairage a été prévu sur l'ensemble de la parcelle.





